Grenoble
Appartement
T2
Réf. :
376

L'essentiel

T2
1 chambres
Garage

Description

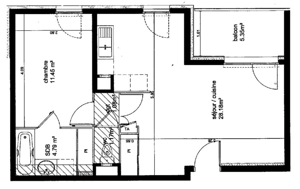
Grenoble rue claude genin appartement T2 de 47 M2 situé au 3ème étage sur 4 d'une copropriété calme et sécurisée de 2010, possibilité d'un grand garage de 16 m2 en sous-sol en sus. iLcomprend un séjour spacieux de 28 m2 avec cuisine ouverte donnant sur une petite terrasse de 5 M2 agréable à l'est vue belledonne, placard de rangement à l'entrée, une chambre, wc indépendant, salle de bains avec baignoire et placard, volets roulants électriques, chaufage collectif avec sous-compteur, local vélos dans la résience.Ce bien est vendu loué, bail jusqu'au 25.01.2027 (loyer 785 euro CC (eau froide et chaude chauffage) .proche de tous commerces, université, autoroute.
idéal investsseurs ou jeunes couples pour toutes visites MME SECCO ANITA 06 42 95 43 93.

Caractéristiques

General

Référence
376
Type de bien
Appartement
Année de construction
0
Nb. d'étages
4
Étage
3
Meublé
Non

Localisation

Code Postal
38100
Ville
Grenoble
Environnement
Calme
Exposition
EST
Vue
montagne

Surfaces/Pièces

Surface
46.67m²
Nb. de pièces
T2
Nb. de chambres
1

Montant

Prix
142000€
Charges
95.00€
Taxe foncière
1840€

Chauffage

Type de chauffage
Autre
Type d'énergie chauffage
Autre
Format de chauffage
Collectif

Divers

Ascenseur
Oui

Bilan énergétique

Montant moyen estimé des dépenses annuelles d’énergie de ce logement pour un usage standard entre 480.00€ et 720.00€. 2021 étant l’année de référence des prix de l’énergie utilisés pour établir cette estimation.

A B C D E F G
A B C D E F G
Voir plus
91 10
10 kgCO₂/m².an

Envie d'en savoir plus ?

Contactez-nous !

Formulaire

colLeft
colRight
En soumettant ce formulaire, j'accepte les conditions d'utilisation de mes données personnelles

Votre contact

Blain Immobilier
20 Bd Edouard Rey
38000 Grenoble

04 76 48 59 89
accueil@blain.immo